Log homes and living off the grid go together like peanut butter and jelly!
That is why we have teamed up with Doug & Stacy to share their journey while they construct a new Gastineau Log Home on their homestead!
Not everyone has the time or knowledge to cut timber off their property, have it milled, and then build their own log home. So the next best thing is to go to the experts in Oak log home construction: Gastineau Log Homes. We have been providing log home building materials since 1977 and we are the worlds largest producer of Oak log homes.
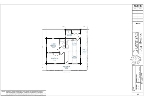
Doug & Stacy chose our Grizzly Adams II plan (see above) but we have about 70 more “standard” plans to choose from… or we can custom design a home to fit exactly what you want for your log home. We have shipped to all 50 states and 12 countries, so we can take care of you no matter where you are going to build!
Register below and we will send you literature PLUS information on our secret offer that goes to each Doug & Stacy subscriber that purchases a log home! Or give our office a call and one of our friendly associates will answer any questions you may have. (About log homes. If you want to ask questions about how to live off the grid, you better contact Doug & Stacy!)
Follow along with Doug as he builds the Grizzly Adams and see how easy it can be for you to build a log home with a log home package from Gastineau Log Homes!
And don’t forget to SUBSCRIBE to Doug & Stacy’s YouTube Channel and follow them on all of their socials!
YouTube: Off Grid with Doug and Stacy
Facebook: https://www.facebook.com/DougandStacy
Instagram: http://Insta/DougAndStacy




