
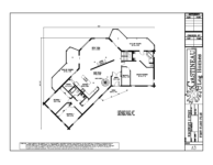
Shaped like a bird’s wing, our Windswept is the same floorplan as our Windsong but without the garage. It is ideal for situations where a garage can be incorporated into the basement or where an attached garage isn’t desired. Highlighting both plans are the decks flanking the prow that help blend the spectacular interior with inspiring outdoor settings.



