
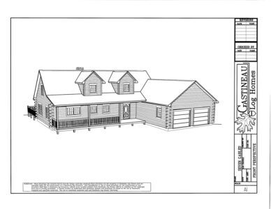
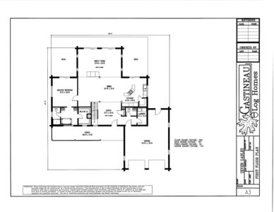
3012 Sq Ft
3 Beds | 2Baths
What a great floor plan! The Seven Gables is now open for you to tour at the new Gastineau Log Home model home center on Interstate-70 at exit 144 in central Missouri. The home is fully furnished and decorated so you can truly experience the beauty of a solid Oak log home. This is a versatile, well thought-out plan that is suitable for any size family. The large master suite on the first floor is a popular feature. The soaring living room with unique gable windows is perfect for the building site with a view. With a luxurious 3,012 square feet, it is suited for a family or retirement home.




