
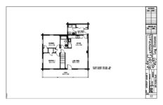
962 Sq Ft
2 Beds | 1.5 Bath
Everything that you love about the Grizzly Adams plus an extra space off the back for a mudroom, laundry, and half bath! Ideal as a weekend/starter/retirement home, our Grizzly Adams II may be the biggest little house on the prairie. A true greatroom with kitchen and two bedrooms provide all that’s necessary for living simply. It’s easy to add porches or a deck. With some imagination, the floor plan can become the core of a home that can expand as your needs change.



