Spacious, sun-filled retreat with breathtaking views and comfort.
1653
3
2
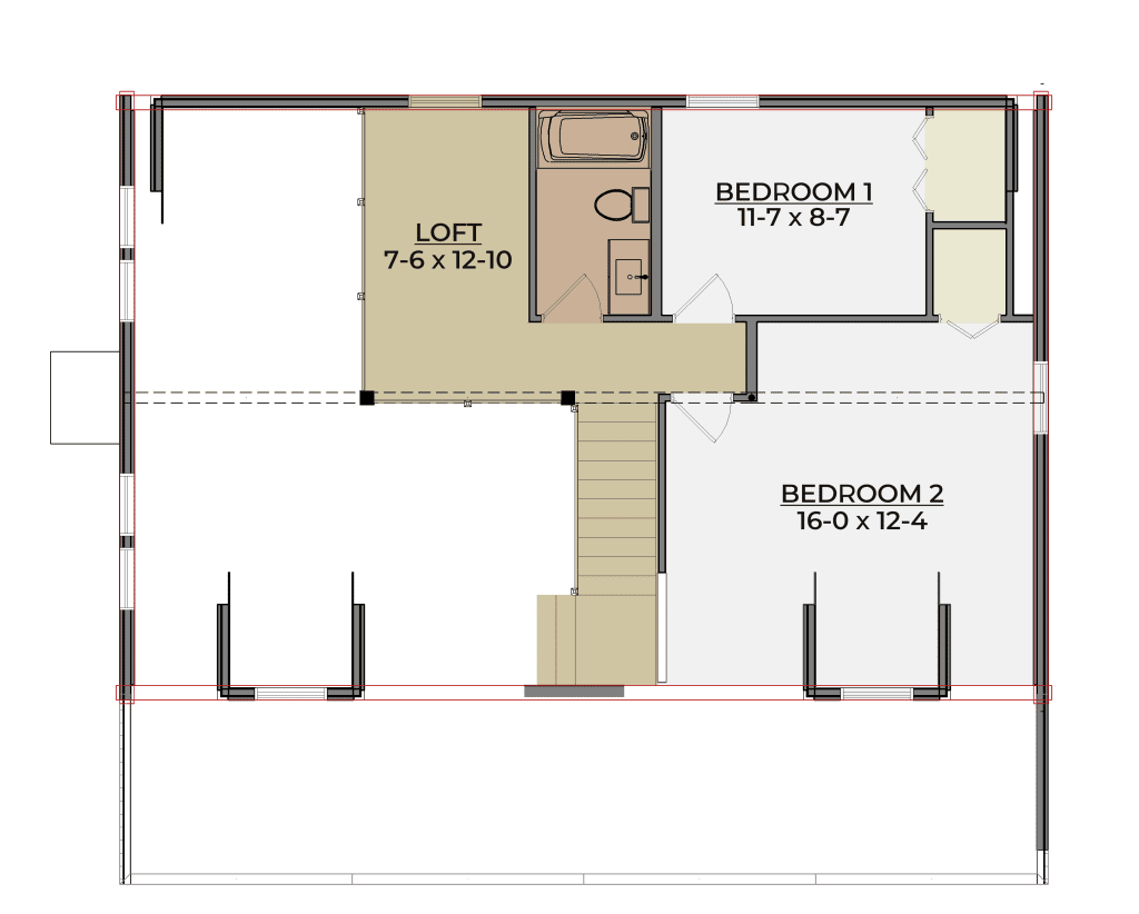
The Sweetwater Floor Plan
About The Sweetwater
When you think of your dream log home, do you envision a home that looks like the Sweetwater? This traditional log home design has a full length front porch, lot of glass in the living room gable end, gabled dormers in front and a shed dormer across the back. This 1653 square foot design maximizes the amount of living space for your family to enjoy. The open concept great room has a cathedral ceiling with tons of natural light from the many windows. The master bedroom on the main level is a very popular because it eliminates stairs for the adult homeowners. The children or guest bedrooms are available upstairs as needed. What a great design for now and in the future for you and your family!
Want to see more of The Sweetwater? No problem!
Click the link below to download a .pdf that shares everything you need to know about this beautiful home.








