
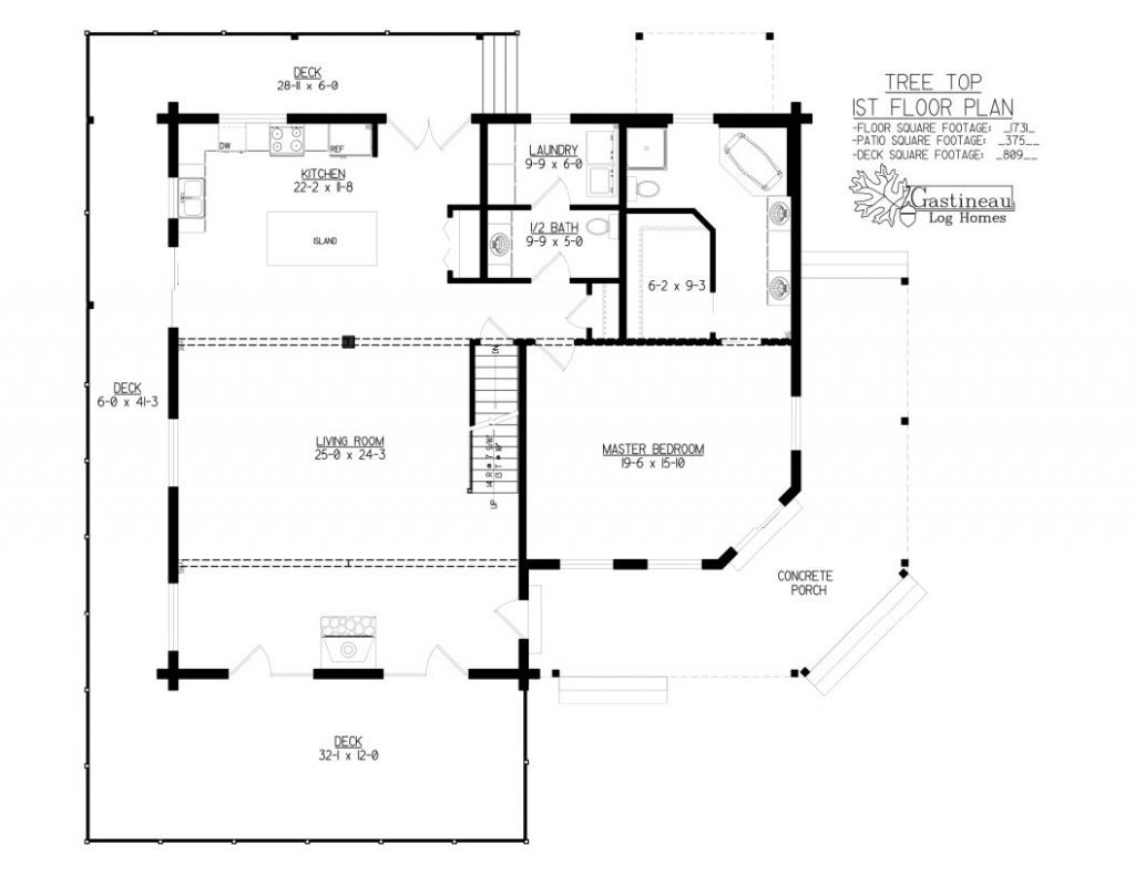
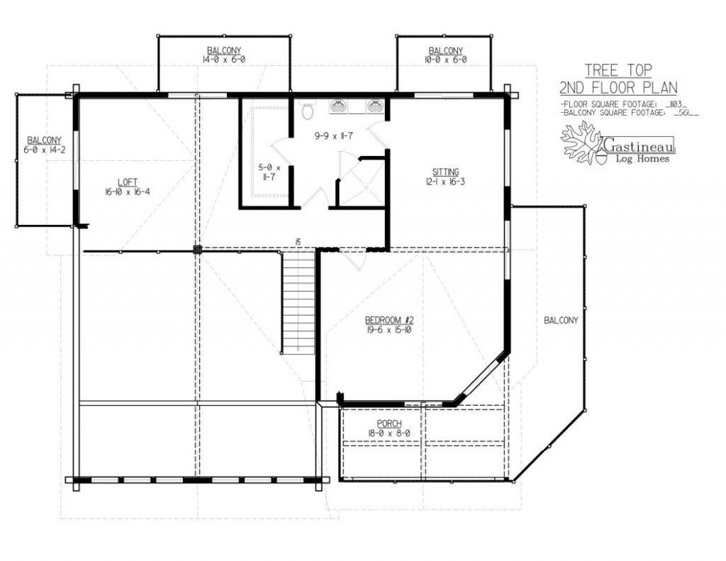
If your land has a view, this home is meant for you! The Tree Top is a modification of our very popular Caroline design. Every room in this home has access to either a porch or a deck, including every room on the second floor! Two huge master suites are in this design, one on each floor. Plus, the first floor has an oversized great room and master ensuite, a utility room, and guest bath. Enjoy to this beautiful, open floor plan with views in every direction.




