Skip to main content

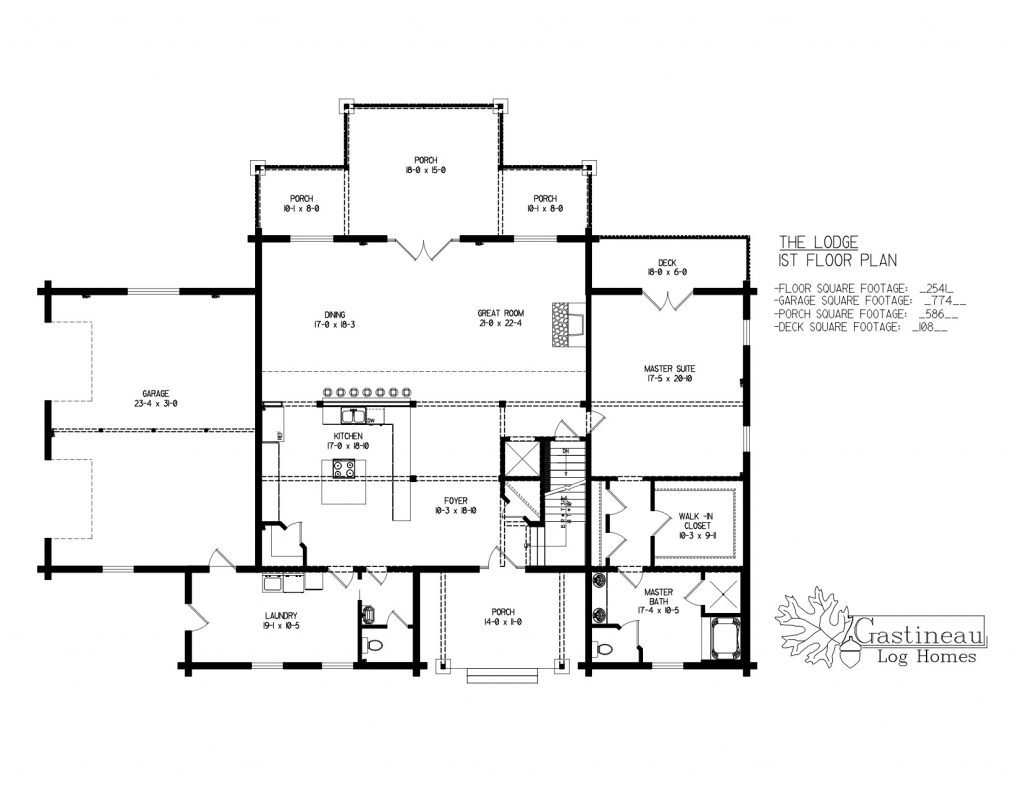
The Lodge

1 Sq Ft
5 Bedrooms
3.5 Bathrooms

Look at The Lodge design! Every room in this home is oversized! Check out the 17’ X 20’ master bedroom! Not to mention the en-suite adjoining the master. This home is the definition of open concept. Imagine walking in that front door into the immense open foyer with gorgeous windows and being able to see all the way through the home and out the back wall of windows. And four more bedrooms upstairs! At 4364 square feet, the Lodge is the home for you if you need a lot of living space with a dramatic flare!

View or Download a PDF of the The Lodge Floorplan

Leave the box checked to create an account and skip this form next time.
Plus with an account you can save your favorite floor plans to review later!

Complete the form below once to download the PDF.

Name
Create Account

Check Out Our Renderings

Take a look at some of our other renderings.

All Renderings