Skip to main content

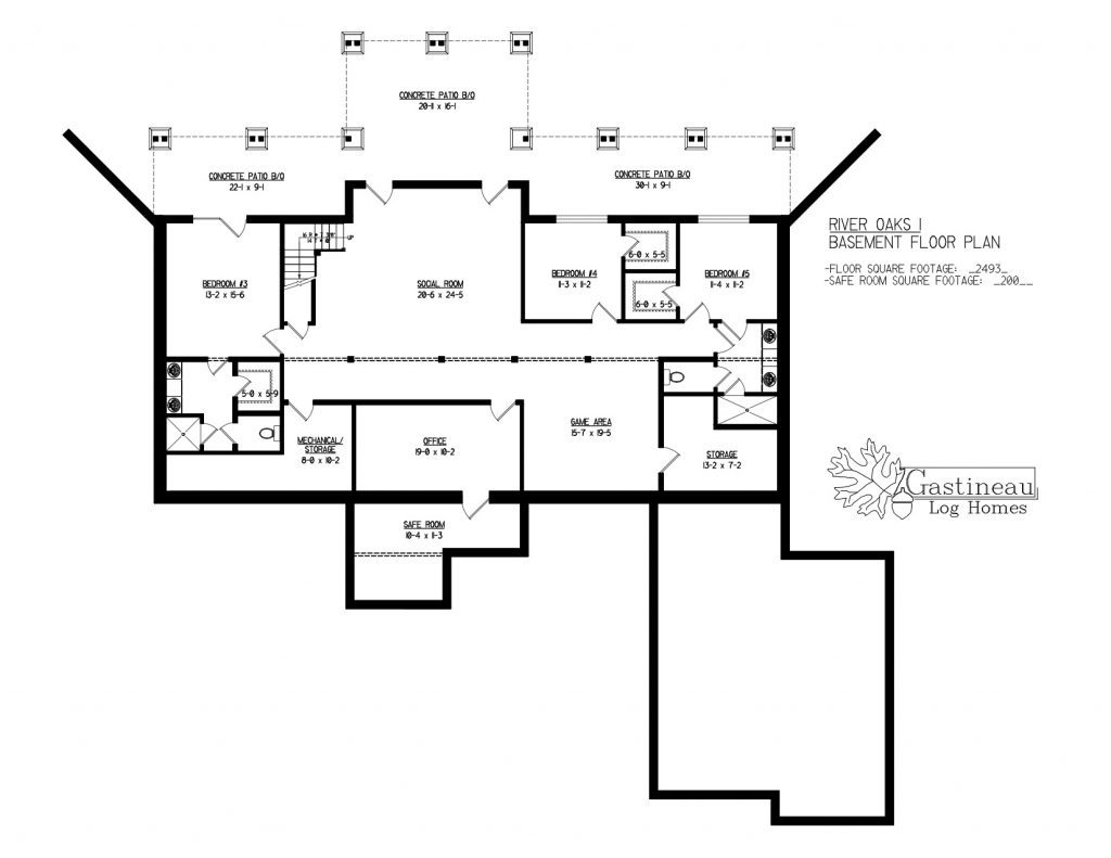
River Oaks

1 Sq Ft
5 Bedrooms
4.5 Bathrooms

This executive luxury one story home is beautiful, efficient and full of surprises. It is a "reverse ranch" with 2 bedrooms on the main level plus 3 bedrooms on the lower level. Luxurious baths off all but one bedroom. Butlers pantry between the oversized garage and the kitchen for the ultimate in convenience. Check out the amazing rear porch with a fireplace! Anything else you could possibly need?

Checkout the River Oaks II, which is the same footprint as our River Oaks plan, but built on a slab or crawlspace instead of a basement.

View or Download a PDF of the River Oaks Floorplan

Leave the box checked to create an account and skip this form next time.
Plus with an account you can save your favorite floor plans to review later!

Complete the form below once to download the PDF.

Name
Create Account

Check Out Our Renderings

Take a look at some of our other renderings.

All Renderings