
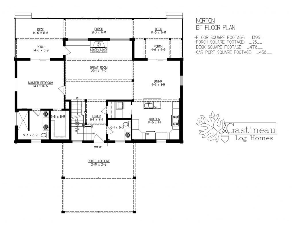
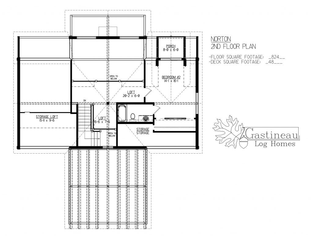
The Norton is like a fine wine…. it improves with age. A great floor plan that lives open and smooth. The cathedral ceiling in the master bedroom makes it feel spacious and airy. The 1400 sqft main level is compact yet contains the essentials. The post and beam porte cochere is an expansive front porch that provides protection from the elements when needed.




