Skip to main content

Dogwood

1 Sq Ft
3 Bedrooms
2.5 Bathrooms

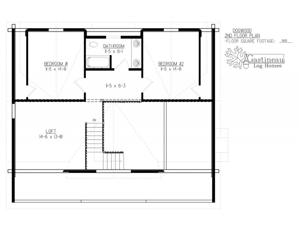
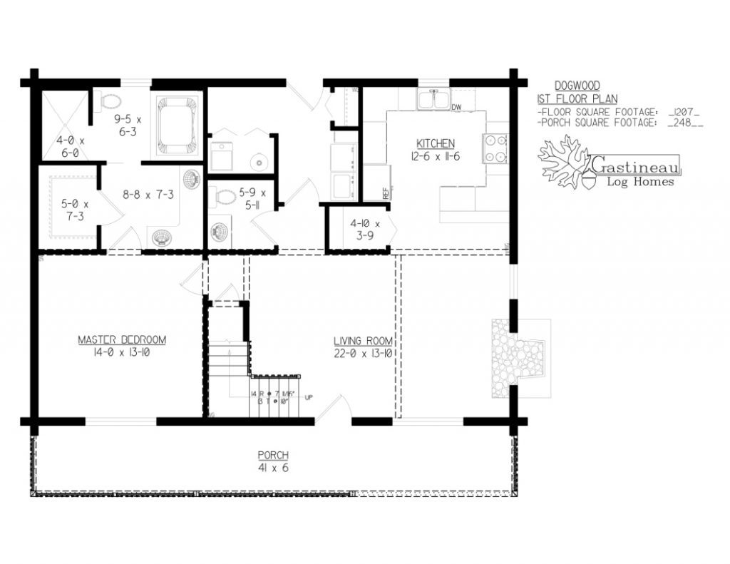
Looking for a lot of features in a smaller footprint? The Dogwood may be the perfect design for you! In just over 2000 sqft, there are three bedrooms with a very nice master suite, two and a half baths, and a utility room on the main level. The gable in front adds great curb appeal but also brings natural light into the living space. The second floor rear dormer provides full height head space for spacious bedrooms. The Dogwood provides a lot of house in a rectangular footprint, which is the most economical style home to build.

View or Download a PDF of the Dogwood Floorplan

Leave the box checked to create an account and skip this form next time.
Plus with an account you can save your favorite floor plans to review later!

Complete the form below once to download the PDF.

Name
Create Account

Check Out Our Renderings

Take a look at some of our other renderings.

All Renderings