
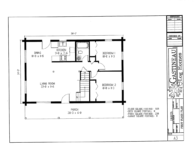
1502 Sq Ft
3beds | 2baths
The phone message of one of our Dakota owners says she can’t come to the phone because she’s in the rocker on the front porch of her new oak log home. But the front porch is only the beginning of the Dakota’s delights! With compact dimensions, the floor plan captures a lot of living space. Its secret is a full length shed dormer that holds a sitting loft and master bedroom and bath. The loft overlooks the great room, creating an exposed beam ceiling for dining area and kitchen. Two additional bedrooms and bath on the main floor make the Dakota an ideal family choice.




