
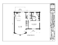
2045 Sq Ft
3 Beds | 2.5 Baths
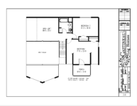
One of our most popular plans and more! The Caroline Loft B boasts the same layout of our Caroline with an extended loft over the kitchen. It also features an open prow with grand trapezoid windows to bring the outdoors in, making the open kitchen and great room combination a cozy and convenient place for the family to gather. There’s also the front porch, balcony, and back deck for lounging outdoors and enjoying the surrounding wildlife, day or night. The master bedroom is complete with a walk-in closet and private master bath including whirlpool tub.




