
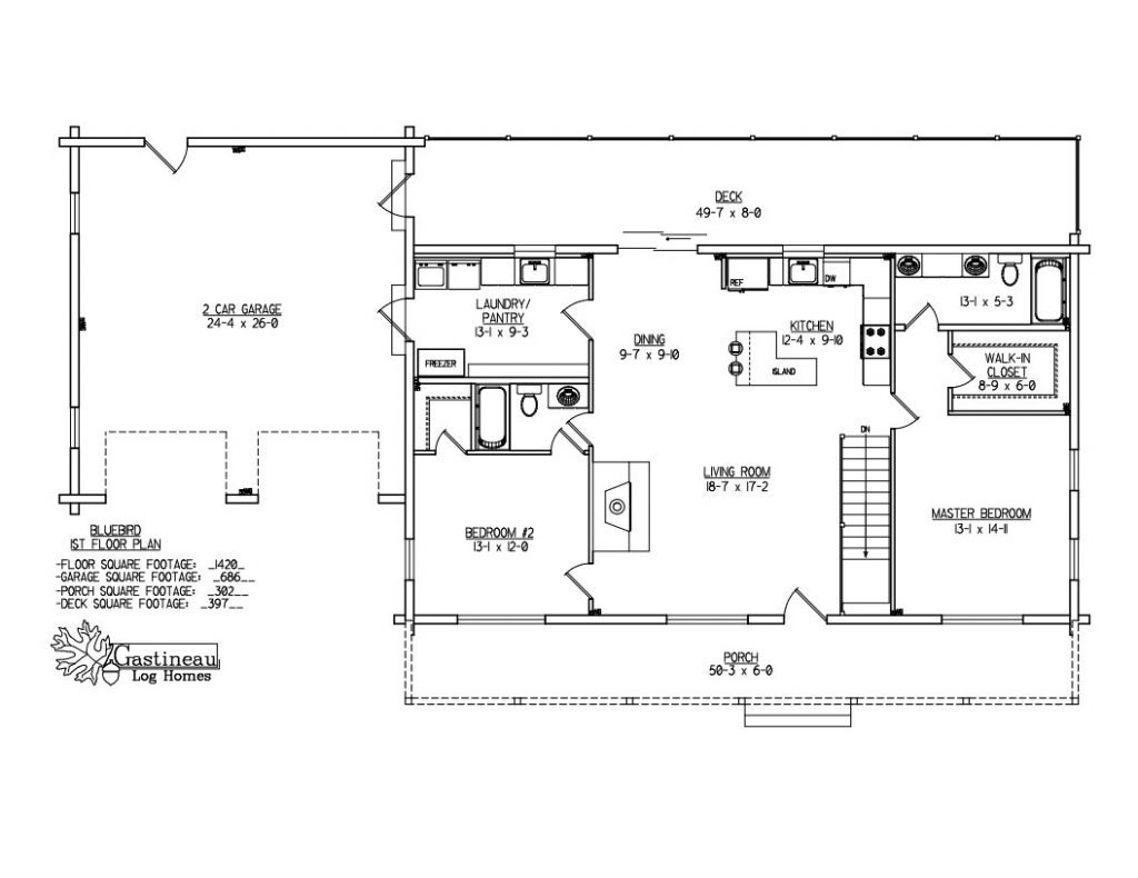
The Bluebird is 1,420 sqft of living space on one floor. With two master suites, an open great room, large utility/pantry, and an attached “easy access” garage, this is the perfect retirement or empty nester home. Need more bedrooms? You could add a loft or finish out bedrooms in the basement.









